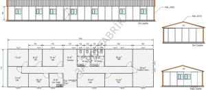
Prefabrik Ofis Binası 189m2.
Prefabrik Şantiye Binaları
Şantiye binaların en önemli yapılardan biri olan ofis binaları ihtiyaca ve talebe bağlı olarak , montaj bölgenin iklim koşulları da göz önüne alınarak tek katlı ya da iki katlı olarak tasarlanabilir.
Prefabrike yapılar standart modüllerden oluştuğu için pratik ve hızlı bir şekilde kurulur.
Ekonomik çözümlerin yanı sıra tercihe bağlı her türlü özel talep ve ihtiyaçlara karşılık verebilecek nitelikte özgün mimari tasarıma sahip binalar da üretilmektedir.
Ofis binaları pres panel veya karkaslı sistem yapılabildiği gibi , dış ve iç duvarlarda çimentolu yonga levha (Betopan) ya da galvaniz fırın boyalı trapez sac kaplama uygulanabilir . Binalarımız defalarca sökülüp yeniden kurulabilir
Prefabrike yapılar standart modüllerden oluştuğu için pratik ve hızlı bir şekilde kurulur.
Prefabrik yapılar esnek oldukları için deprem ve zemin kaymalarına karşı dayanıklıdırlar.
Prefabrik yapılar bütün iklim şartlarına göre imal edilebilirler.
Prefabrike yapılar ses ve ısı yalıtımı konusunda diğer yapılardan üstün özelliklere sahiptirler
Prefabrik yapılar tahribat yapmadan, çevreyi kirletmeden kısa sürede kurulur.
Prefabrik yapılar modern ve tarihi dokuya uygun olarak üretile bilirler.
Prefabrik yapılar yangına karşı dirençlidirler.
